Description
🌊✨ โอกาสทองแห่งการลงทุนบนที่ดินติดทะเล! ✨🌊
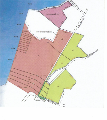
📍 ที่ดินแปลงใหญ่ ติดทะเลศรีราชา
🏝️ รายละเอียดทรัพย์:
▪ ขนาดที่ดิน: 82 ไร่ 1 งาน 69 ตารางวา
▪ แปลงขนาดใหญ่ หน้ากว้าง ติดชายทะเลโดยตรง
▪ อยู่ใน พื้นที่เดียวกับท่าเรือศรีราชาฮาร์เบอร์ และท่าเรือศรีราชาเฟอร์รี่
▪ ศักยภาพสูง รองรับการพัฒนาโครงการใหญ่ เช่น
โรงแรม | รีสอร์ท | คอนโดวิวทะเล | ท่าเรือเอกชน | โลจิสติกส์ ฯลฯ
📌 ทำเลระดับพรีเมียม:
🌟 ใจกลางศรีราชา แหล่งเศรษฐกิจ EEC
🌟 ติดถนน และใกล้แหล่งคมนาคมหลัก
🌟 รายล้อมด้วยสิ่งอำนวยความสะดวก และโครงการพัฒนาในอนาคต
💰 ราคาขายยกแปลงเพียง ไร่ละ 40 ล้านบาท
📐 รวมทั้งแปลงเพียง 3,295 ล้านบาท
📞 สอบถามรายละเอียด / นัดชมพื้นที่:
☎️คุณต๋อย(Khun Toi) : 092-641-5999 /Line : 0926415999
☎️ คุณปิ่น(Khun Pin) : 061-551-6944 / Line Id : pinsata56
📌Email/อีเมล์ : arunaptoperty21@gmail.com
📌Website1 : www.arunaproperty.com
📌FB Page : Aruna Property นายหน้าอสังหาริมทรัพย์ by ต๋อยสุพรรณ
📌WeChat : toysuphan21
📌WhatApp : +66926415999
รับฝากขาย ขายฝาก รับซื้อ เช่า อสังหาฯ ทุกชนิด
#รับฝากขายอสังหาฯทุกประเภท #ซื้อขายอสังหาริมทรัพย์ #ธุรกิจอสังหาริมทรัพย์ #บ้านสวยมือสอง #ที่ดินมีโฉนด
#ที่ดินสวย #บ้าน #โครงการ #หมู่บ้าน #โฮมออฟฟิต #บ้านมือสอง




Features
เนื้อที่ | 82-1-69 ไร่ |